 
        
        Piedāvā plašu dzīvokli Rīgas vēstniecību rajonā
€1,000,000.00
8, Muižas iela, Bulduri, Jūrmala, Vidzeme, LV-2010, Latvia
Pārdod
€850,000.00



































 
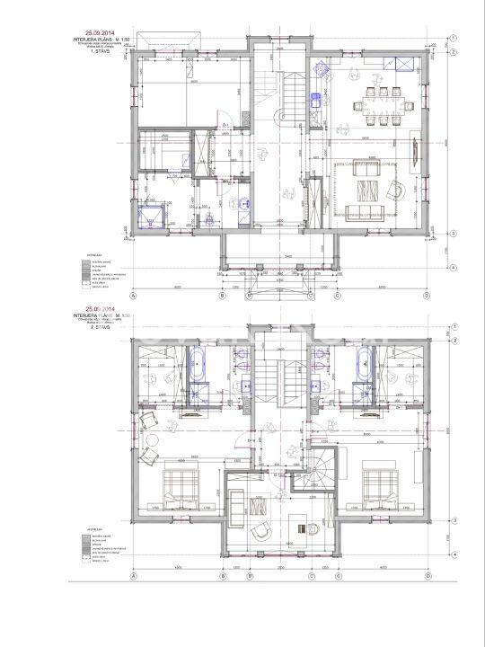
            Tiek piedāvāta mājīga māja Bulduros.
Māju ieskauj priedes, tikai 7 minūšu gājiena attālumā no jūras. Netālu visa nepieciešamā infrastruktūra – lielveikali, degvielas uzpildes stacijas, fitnesa klubi, tenisa korts, jahtu klubs un akvaparks “Livu”.
Pirmajā stāvā ir viesistaba ar virtuvi un ēdamistabas zonu, halle, tualete, sauna, dušas telpa un saimniecības telpa.
Otrajā stāvā ir divas guļamistabas ar ģērbtuvēm un vannas istabām, birojs un viesu istaba.
 
                                    
		                                                    
                    
                
				                
                    
                    
                        
                                                                
                                         Savrupmāja pie Baltā ezera (Baltezers)
                                    
		                                                            Savrupmāja pie Baltā ezera (Baltezers)